Skip To Content

12056 Stallings Commerce Drive

Matthews, NC 28105
  • $8,260
  • STATUS: Active
  • ON SITE: 278 Days
  • ID#: 4232044
UPDATED: 31 min ago
$8,260
  • 0
    BEDS
  • 0.5
    ACRES
  • 0
    BATHS
  • 0
    1/2 BATHS
Type:
Commercial-Lease
Built:
1984
County:
Area:

School Ratings & Info

Canopy MLS logo Offered by Moser Group, Inc., The: 704-882-1700. Copyright 2025 Canopy MLS. All rights reserved.

Description

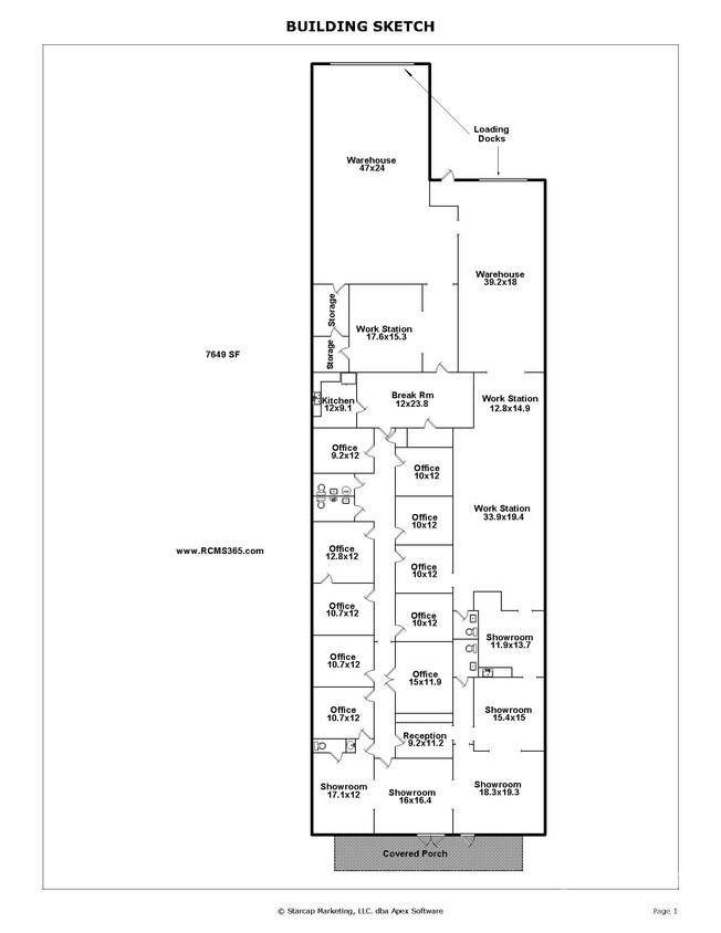
Available for sale or lease: 7,625 SF flex property in Stallings offers a unique opportunity for owner-users or tenants looking to expand in a high-growth area. Prime location off US-74 offers easy access to 74 and I-485 to Charlotte, Monroe, and surrounding markets. Zoned MU-2 in Stallings, the property supports a wide range of uses. Currently built out with +/- 3,000 SF of warehouse and the remainder private office and showroom area. The office area is made up of partition walls, allowing for easy reconfiguration to suit your needs. One dock door and one drive-in door.



MLS Grid logo Based on information submitted to the MLS GRID as of 2025-12-14T20:33:15.103 UTC. All data is obtained from various sources and may not have been verified by broker or MLS GRID. Supplied Open House Information is subject to change without notice. All information should be independently reviewed and verified for accuracy. Properties may or may not be listed by the office/agent presenting the information.The data relating to real estate on this Web site derive in part from the Canopy MLS IDX program. Brokers make an effort to deliver accurate information, but buyers should independently verify any information on which they will rely in a transaction. All properties are subject to prior sale, change or withdrawal. Neither Carlyle Properties nor any listing broker shall be responsible for any typographical errors, misinformation, or misprints, and they shall be held totally harmless from any damages arising from reliance upon this data. This data is provided exclusively for consumers' personal, non-commercial use and may not be used for any purpose other than to identify prospective properties they may be interested in purchasing. © 2025 Canopy MLS.

“Listings courtesy of Canopy MLS as distributed by MLS GRID

Some IDX listings have been excluded from this website.

Digital Millennium Copyright Act
www.carlyleproperties.com/homes/161280833
Print Image

12056 Stallings Commerce Drive Matthews, NC 28105

  • Price: $8,260
  • Status: Active
  • On Site: 278 Days
  • Updated: 31 min ago
  • ID#: 4232044
0
Beds
0
Baths
0
½ Baths
0.5
Acres
1984
Built
County:
Union
Area:
Matthews
Property Description
Available for sale or lease: 7,625 SF flex property in Stallings offers a unique opportunity for owner-users or tenants looking to expand in a high-growth area. Prime location off US-74 offers easy access to 74 and I-485 to Charlotte, Monroe, and surrounding markets. Zoned MU-2 in Stallings, the property supports a wide range of uses. Currently built out with +/- 3,000 SF of warehouse and the remainder private office and showroom area. The office area is made up of partition walls, allowing for easy reconfiguration to suit your needs. One dock door and one drive-in door.
Exterior Features

Carport YN No Construction Type Site Built Foundation Details Slab Other Parking Parking lot and rear parking as accessible Parking Features AssignedParking Lot Road Responsibility Publicly Maintained Road Road Surface Type Paved

Interior Features

Basement YN No

Property Features

Association YN No Auction YN No Building Features Loading Dock CCRSubject To Undiscovered City Taxes Paid To Stallings Hoa Subject To None Inclusions BuildingLand Inside City YN Yes New Construction YN No Number Of Docks Total 1 Number Of Drive In Doors Total 1 Possible Use Commercial Property Sub Type Warehouse/Office Restrictions Use Restrictions Description Zoning Senior Community YN No Sewer Public Sewer Tenant Pays All Utilities Water Source City



MLS Grid logo Based on information submitted to the MLS GRID as of 2025-12-14T20:33:15.103 UTC. All data is obtained from various sources and may not have been verified by broker or MLS GRID. Supplied Open House Information is subject to change without notice. All information should be independently reviewed and verified for accuracy. Properties may or may not be listed by the office/agent presenting the information.The data relating to real estate on this Web site derive in part from the Canopy MLS IDX program. Brokers make an effort to deliver accurate information, but buyers should independently verify any information on which they will rely in a transaction. All properties are subject to prior sale, change or withdrawal. Neither Carlyle Properties nor any listing broker shall be responsible for any typographical errors, misinformation, or misprints, and they shall be held totally harmless from any damages arising from reliance upon this data. This data is provided exclusively for consumers' personal, non-commercial use and may not be used for any purpose other than to identify prospective properties they may be interested in purchasing. © 2025 Canopy MLS.

“Listings courtesy of Canopy MLS as distributed by MLS GRID

Some IDX listings have been excluded from this website.

Digital Millennium Copyright Act
 
https://bt-photos.global.ssl.fastly.net/cmls/orig_boomver_1_4232044-1.jpg https://bt-photos.global.ssl.fastly.net/cmls/orig_boomver_1_4232044-1.jpg https://bt-photos.global.ssl.fastly.net/cmls/orig_boomver_1_4232044-1.jpg
Logo
Carlyle Properties
19520 W Catawba Ave Suite 113
Cornelius NC, 28031
Canopy MLS logo Offered by Moser Group, Inc., The: 704-882-1700. Copyright 2025 Canopy MLS. All rights reserved.