Skip To Content

2901 Vestal Place

Charlotte, NC 28212
  • $60,000
  • STATUS: Closed
  • ON SITE: 28 Days
  • ID#: 4343833
Sold - 02/27/2026
$60,000
SOLD - 02/27/2026
  • 0
    BEDS
  • 0.23
    ACRES
  • 0
    BATHS
  • 0
    1/2 BATHS
Neighborhood:
Type:
Vacant Land / Lots
County:
Area:

School Information

Elementary School:
Middle School:
High School:
Canopy MLS logo Offered by Cole Real Estate Advisors: 704-337-5000. Copyright 2026 Canopy MLS. All rights reserved.

Description

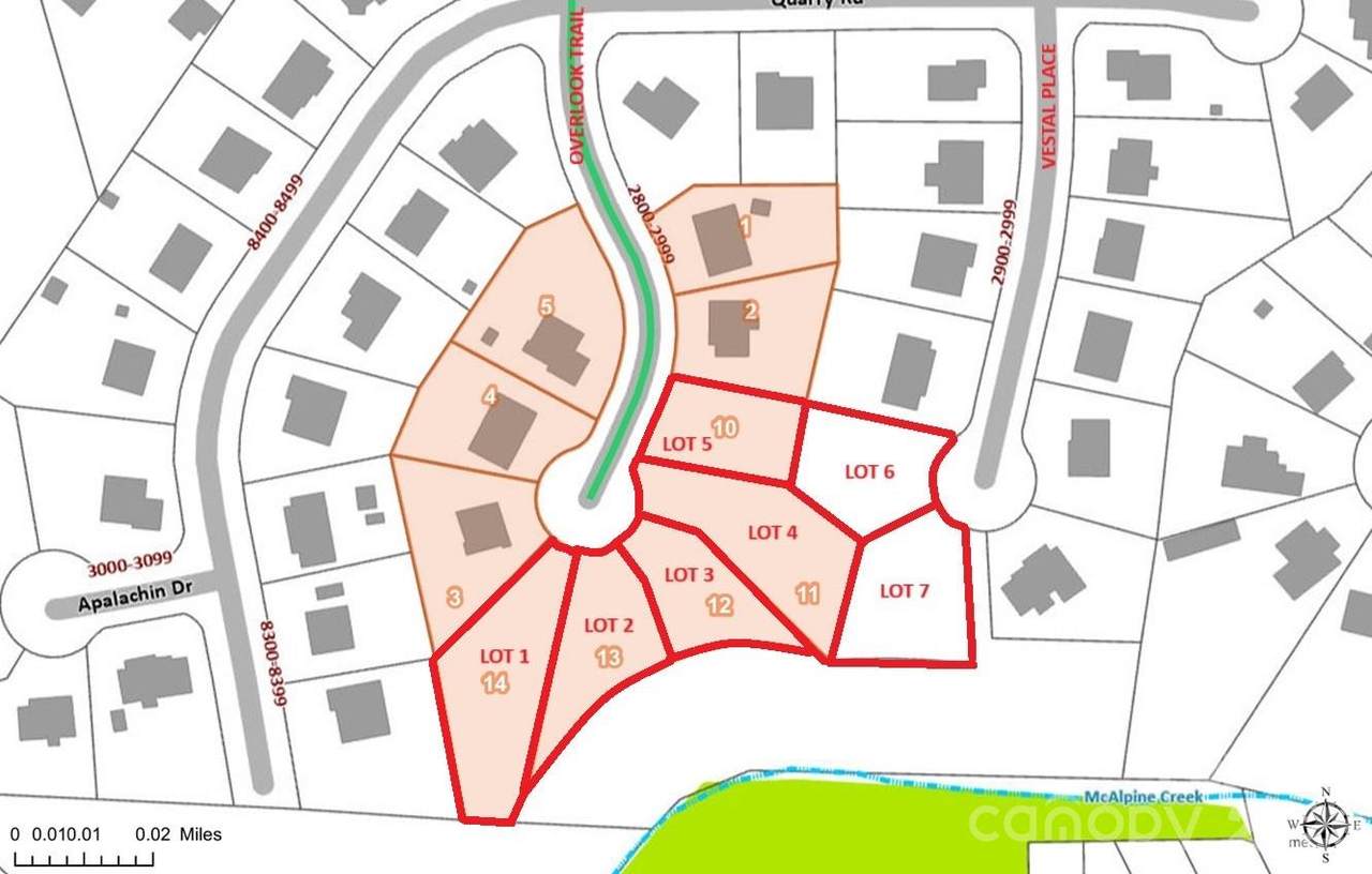
Builders take note, single family or duplex lots . Just recently surveyed and released 6 cul-de-sac lots. This is 6 new lots in the neighborhood of Stoneridge. No found CCR's 2 Lots on Vestal Place and 4 on Overlook Trail, Located just off of Idlewild Rd. Survey and soil test available. Several of the sites are basement lots. Water and Sewer taps fees will be required. Survey attached. Address and parcel numbers are below. 2834 Overlook Trail 0.206 acres Tax Id- 16520218, Lot 2 2840 Overlook Trail 0.185 acres Tax Id- 16520217,Lot 3 2900 Overlook Trail 0.277 acres Tax Id- 16520216, Lot 4 2908 Overlook Trail 0.166 acres Tax Id- 16520215, Lot 5 2905 Vestal Place 0.199 acres Tax Id- 16520214, Lot 6 2901 Vestal Place 0.226 acres Tax Id- 15620213, Lot 7


Sold by Cole Real Estate Advisors.
Listed by Cole Real Estate Advisors.
Properties displayed may be listed or sold by various participants in the MLS.

Monthly Payment Calculator



MLS Grid logo Based on information submitted to the MLS GRID as of 2026-03-06T21:33:56.667 UTC. All data is obtained from various sources and may not have been verified by broker or MLS GRID. Supplied Open House Information is subject to change without notice. All information should be independently reviewed and verified for accuracy. Properties may or may not be listed by the office/agent presenting the information.The data relating to real estate on this Web site derive in part from the Canopy MLS IDX program. Brokers make an effort to deliver accurate information, but buyers should independently verify any information on which they will rely in a transaction. All properties are subject to prior sale, change or withdrawal. Neither Carlyle Properties nor any listing broker shall be responsible for any typographical errors, misinformation, or misprints, and they shall be held totally harmless from any damages arising from reliance upon this data. This data is provided exclusively for consumers' personal, non-commercial use and may not be used for any purpose other than to identify prospective properties they may be interested in purchasing. © 2026 Canopy MLS.

“Listings courtesy of Canopy MLS as distributed by MLS GRID

Some IDX listings have been excluded from this website.

Digital Millennium Copyright Act
www.carlyleproperties.com/homes/172791965
Print Image

2901 Vestal Place Charlotte, NC 28212

  • Price: $68,500
  • Status: Closed
  • On Site: 28 Days
  • Updated: 34 min ago
  • ID#: 4343833
0
Beds
0
Baths
0
½ Baths
0.23
Acres
Neighborhood:
Stoneridge
County:
Mecklenburg
Area:
Charlotte
Elementary School:
Unspecified
Middle School:
Unspecified
High School:
Unspecified
Property Description
Builders take note, single family or duplex lots . Just recently surveyed and released 6 cul-de-sac lots. This is 6 new lots in the neighborhood of Stoneridge. No found CCR's 2 Lots on Vestal Place and 4 on Overlook Trail, Located just off of Idlewild Rd. Survey and soil test available. Several of the sites are basement lots. Water and Sewer taps fees will be required. Survey attached. Address and parcel numbers are below. 2834 Overlook Trail 0.206 acres Tax Id- 16520218, Lot 2 2840 Overlook Trail 0.185 acres Tax Id- 16520217,Lot 3 2900 Overlook Trail 0.277 acres Tax Id- 16520216, Lot 4 2908 Overlook Trail 0.166 acres Tax Id- 16520215, Lot 5 2905 Vestal Place 0.199 acres Tax Id- 16520214, Lot 6 2901 Vestal Place 0.226 acres Tax Id- 15620213, Lot 7
Exterior Features

Carport YN No Road Responsibility Publicly Maintained Road Road Surface Type Paved

Interior Features

Below Grade Finished Area 0

Property Features

Additional Parcels YN False Association YN No Auction YN No Can Subdivide YN No CCRSubject To No City Taxes Paid To Charlotte Habitable Residence YN No Hoa Subject To None Lease Considered YN No Possible Use Residential Property Sub Type Lot Restrictions No Representation Senior Community YN No Sewer Public SewerTap Fee Required Special Listing Conditions None Water Source CityTap Fee Required Zoning N1-B



MLS Grid logo Based on information submitted to the MLS GRID as of 2026-03-06T21:33:56.667 UTC. All data is obtained from various sources and may not have been verified by broker or MLS GRID. Supplied Open House Information is subject to change without notice. All information should be independently reviewed and verified for accuracy. Properties may or may not be listed by the office/agent presenting the information.The data relating to real estate on this Web site derive in part from the Canopy MLS IDX program. Brokers make an effort to deliver accurate information, but buyers should independently verify any information on which they will rely in a transaction. All properties are subject to prior sale, change or withdrawal. Neither Carlyle Properties nor any listing broker shall be responsible for any typographical errors, misinformation, or misprints, and they shall be held totally harmless from any damages arising from reliance upon this data. This data is provided exclusively for consumers' personal, non-commercial use and may not be used for any purpose other than to identify prospective properties they may be interested in purchasing. © 2026 Canopy MLS.

“Listings courtesy of Canopy MLS as distributed by MLS GRID

Some IDX listings have been excluded from this website.

Digital Millennium Copyright Act
 
Logo
Carlyle Properties
19520 W Catawba Ave Suite 113
Cornelius NC, 28031
Canopy MLS logo Offered by Cole Real Estate Advisors: 704-337-5000. Copyright 2026 Canopy MLS. All rights reserved.